Save
Ask
Hide
$1,800
1021 ARLINGTON BOULEVARD 509ARLINGTON, VA 22209
Condominium|Rented/Leased 03/23/2025
1
Bed
1
Total Bath
1
Full Bath
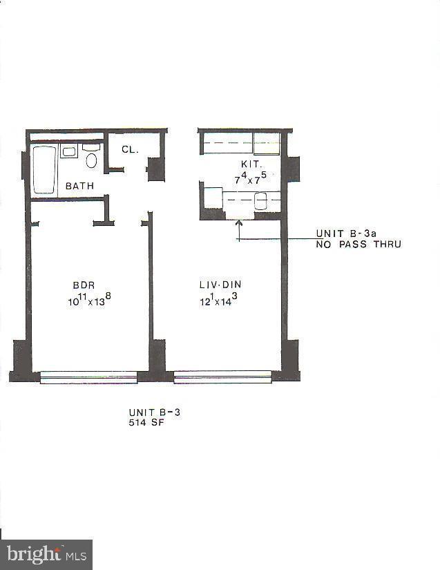
514
SqFt
$4
/SqFt
1955
Built
Subdivision:
RIVER PLACE EAST
County:
ARLINGTON
Listing courtesy of Keller Williams Realty Dulles
Bought with Luis G Quetell of Samson Properties (703) 378-8810
Call Now: 703-980-3027
Is this the listing for you? We can help make it yours.
703-980-3027



Save
Ask
Hide
Charming true one bedroom just two blocks to Rosslyn Metro (Orange & Blue lines)! With views of Georgetown and the Rosslyn Skyline with plenty of light. The Monthly rent includes all your utilities except for internet! Included in the rent the property comes with one assigned parking space. Only one metro stop to D.C. Walk-in closet for extra storage. Easy access to major commuter routes. On-site fitness center, pool, convenience store and coffee shop. The property features 24 hour security and all benefits of Arlington living. From the property you can just walk over the Key Bridge to Georgetown!
Save
Ask
Hide
Listing Snapshot
Bedrooms
1
Total Baths
1
Full Baths
1
Partial Baths
N/A
Inside Area (SqFt)
514 sqft
Lot Size
N/A
Year Built
1955
MLS® Number
VAAR2052716
Status
Rented/Leased
Property Tax
N/A
HOA/Condo/Coop Fees
N/A
Sq Ft Source
Assessor
Friends & Family
Recent Activity
| 12 months ago | Listing updated with changes from the MLS® |
General Features
Available on
2025-02-01
Levels
One
Parking
AssignedParking Lot
Parking Spaces
1
Pets
No
Property Sub Type
Condominium
Security
Security Guard
Sewer
Public Sewer
SqFt Above
514
Style
Traditional
Water Source
Public
Zoning
RA4.8
Interior Features
Appliances
Gas RangeGas OvenGas Water HeaterDishwasherDisposalMicrowaveRefrigerator
Cooling
ZonedElectric
Furnished
Partially
Heating
Natural Gas
Laundry Features
Common Area
Main Level Bedrooms
1
Save
Ask
Hide
Exterior Features
Construction Details
Brick
Pool Features
CommunityPrivateLap
Private Pool
Yes
Community Features
Accessibility Features
Accessible Elevator Installed
Association Amenities
Billiard RoomConciergeFitness CenterSaunaElevator(s)Playground
Community Features
Pool
HOA Fee Frequency
Monthly
School District
ARLINGTON COUNTY PUBLIC SCHOOLS
Schools
School District
ARLINGTON COUNTY PUBLIC SCHOOLS
Elementary School
Unknown
Middle School
Unknown
High School
Unknown
Neighborhood & Commute
Source: Walkscore
Disclosure: Community information and market data powered by Constellation Data Labs. Information is deemed reliable but not guaranteed.
Save
Ask
Hide

Did you know? You can invite friends and family to your search. They can join your search, rate and discuss listings with you.